




Funktioner og detaljer


Dobbeltgarage i træ med plads til to biler og meget andet. Den dobbelte garage er perfekt til at beskytte dine biler, motorcykler, cykler eller andet. I det separate rum er der plads til haveredskaber og meget andet. De store åbninger gør det nemt at køre ind med biler m.m. Det todelte tag er en del af det moderne design, og de tre vinduer sørger for lys inde i garagen og skuret om dagen. NB! Tagpap medfølger ikke! Modularo® er et moderne livsstilsbrand med fokus på høj kvalitet, holdbarhed og komfort. Brandet byder på et stort udvalg af bygninger som skure, havepavilloner, drivhuse og bjælkehytter i massivt træ, som kan være med til at gøre dit liv i haven endnu skønnere i de næste mange år.
Produktspecifikationer
-
DørtypeSingle hinged door
-
MaterialeNordisk Gran (Picea Abies)
-
FarveMørkegrå
-
Tag-/hældningsvinkel (⁰)13.9
-
Vægpladetykkelse (mm)44
-
Sidehøjde (m)2.28
-
ProduktnummerWC165111
-
Tagpladetykkelse (mm)18
-
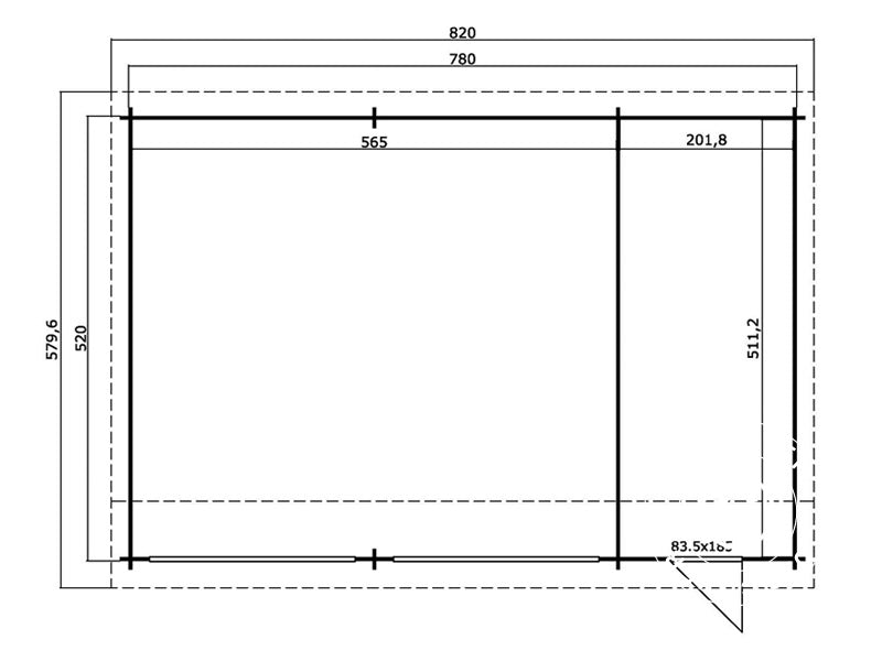
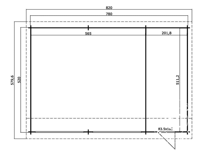
Udvendig længde (m)5.8
-
Udvendig bredde (m)8.2
-
Tagudhæng (cm)20
-
Indvendig længde (m)5.112
-
Indvendig bredde (m)7.668
-
Vægt (kg)2381
-
Kip-højde (m)3.21
-
Sidepladetykkelse (mm)44
- Åben dobbeltgarage/carport uden døre eller porte
- Massivt 44 mm nordisk træ
- Dør i skur kan aflåses
- 3 vinduer giver lys i garagen og skuret om dagen
- Dør i skur 83,5 x 185 cm
- 3 x vinduer 150 x 41 cm
- Der medfølger IKKE tagpap!
- Alle dele er præfabrikerede
- Nem at samle med tydelig vejledning
- Kræver min. 2 personer at samle garagen
- 39,42 m²
Med denne store, dobbelte garage i nordisk træ får du et godt beskyttet sted til dine biler og meget andet. Det integrerede skur er adskilt, men kan bruges til opbevaring af alle de ting, du skal bruge i haven – haveredskaber, plæneklipper, grillen, legetøj, tilbehør til poolen og hynder til terrassen m.m. Døren i skuret kan låses. De to store åbninger gør det nemt at parkere bilerne, så de står godt beskyttet mod vind og vejr.
En kvalitetsgarage i massivt 44 mm udvalgt nordisk træ. Fordi træet har fået lov at vokse langsomt i kolde egne i Europa, består din garage af meget stabile, solide og holdbare materialer, som vil holde i lang tid, især hvis du passer godt på dem. Garagen i træ har et smukt, todelt skråtag, hvor vandet ikke kan samle sig. Bemærk venligst – tagpap medfølger ikke! De 3 vinduer på forsiden sørger for lys inde i garagen og skuret i løbet af dagen, så du altid kan orientere dig og finde det, du skal bruge.
Din garage bliver leveret som et præfabrikeret samlesæt. Vi anbefaler, at man minimum er to om at samle garagen, hvor der ikke behov for specialværktøj. Du skal blot følge den detaljerede samlevejledning trin for trin. Har du valgt en garage i ubehandlet træ, så anbefaler vi, at du behandler den med en eller anden form for træbeskyttelse. Har du spørgsmål om vores garager eller andre produkter, kontakt os venligst via telefon, e-mail eller brug vores chat.
Modularo® er et moderne livsstilsbrand med fokus på høj kvalitet, holdbarhed og komfort. Brandet byder på et stort udvalg af solide træbygninger som skure, havepavilloner, drivhuse og bjælkehytter, som kan være med til at gøre dit liv i haven endnu skønnere i de næste mange år. Brandet giver dig elegant design, høj funktionalitet samt plads til at leve.
Dobbeltgarage, carport i træ Vaasa, 7,8x5,2x3,21m, 44mm, Mørkegrå
Funktioner og detaljer







