





Funktioner og detaljer



Anneks i massivt 19 mm FSC-certificeret nordisk gran i et moderne paneldesign til haven m.m. Vinduerne fra gulv til loft i hærdet glas sørger for en masse lys inde i annekset. Vinduerne i sikkerhedsglas på siden kan åbnes og give udluftning. Alle paneler og andre dele er præfabrikerede, så der skal ikke saves og skæres. Et moderne og elegant anneks eller havepavillon i træ, der er perfekt til afslapning og hygge, som hjemmearbejdsplads eller hvis familie og venner gerne vil overnatte. Trægulv er inkluderet! OBS! Tagbeklædning er IKKE inkluderet. Vi anbefaler, at du undersøger det store udvalg af tagbeklædninger i dit lokale byggemarked.
Produktspecifikationer
-
MaterialeNordisk Gran (Picea Abies)
-
FarveAntracit
-
Vægpladetykkelse (mm)19
-
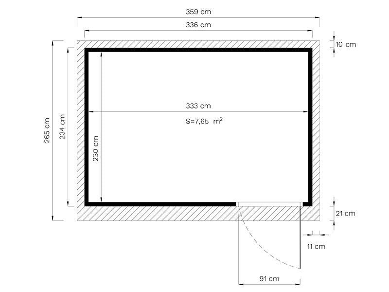
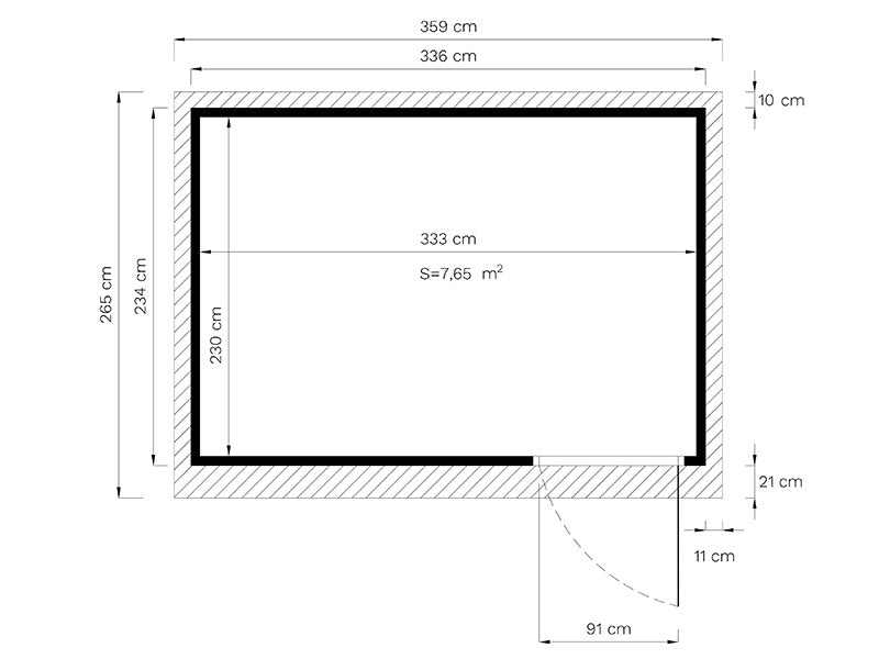
Sidehøjde (m)2.22
-
ProduktnummerWC201471
-
Tagpladetykkelse (mm)19
-
Udvendig længde (m)2.65
-
Udvendig bredde (m)3.59
-
Indvendig længde (m)2.3
-
Indvendig bredde (m)3.33
-
Snelast (kg/m²)160
-
Vægt (kg)4
-
Kip-højde (m)2.33
-
Sidepladetykkelse (mm)19
-
Tagpladetykkelse (mm)19
- Elegant og moderne anneks i træ
- Massivt 19 mm FSC-certificeret nordisk gran (Picea Abies)
- Stor dør med vinduespanel
- Store vinduer giver smukt lysindfald
- Vinduer til udluftning
- Døråbning måler 0,91x1,86 m
- Lamineret dørkarm
- Taghældning 2,2°
- Kan aflåses med cylinderlås
- Inklusiv trægulv
- Der medfølger IKKE tagpap!
- Alle dele er præfabrikerede
- Nemt at samle med tydelig samlevejledning
- Designet og fremstillet i EU
- Snebelastning 160 kg/m²
- 7,87 m²
Dette moderne og elegante anneks eller havepavillon i træ er som skabt til afslapning og hygge, til hjemmekontor eller som gæstehytte til, når venner og familie gerne vil blive et par dage. Den store dør sikrer nem adgang, og de store vinduer med hærdet glas fra gulv til loft giver et skønt lysindfald inde i annekset. Vinduerne i siden er med sikkerhedsglas og kan åbnes, når der skal luftes ud. Alle paneler og andre dele er præfabrikerede, og det betyder, at alting er nemt at samle, uden at der skal saves. Der medfølger trægulv! Døren kan aflåses med den indbyggede cylinderlås.
Et elegant og moderne redskabsskur i massivt 19 mm FSC-certificeret træ fra ansvarlig skovdrift. Skuret er lavet af stabilt, robust og slidstærkt træ, som holder i lang tid, især hvis du passer på det. Redskabsskuret har et tag med 2,2° hældning, så vandet ikke samler sig. Det er vigtigt, at du installerer permanent tagpap eller shingles inden for et par uger efter monteringen. Bemærk – tagpap medfølger ikke!
Alle brædder males på en sprøjtelinje inden panelmontage. Brædderne er belagt med grunder og en holdbar finish i en to-trinsproces. Profilerne males udvendigt, herunder fer og not. For at forlænge skurets levetid i mange år bør alle indvendige træoverflader behandles med en åndbar træbejdse.
Det er vigtigt, at du placerer redskabsskuret i træ på et forberedt og plant fundament, så alle de forskellige dele passer sammen og så skuret bliver funktionelt. Brug cement, fliser eller lignende til fundamentet. Ydermere er det vigtigt, at du sørger for, at der ikke samler sig vand under skuret, da det kan beskadige det medfølgende trægulv. Vi anbefaler desuden, at du forsegler alle vinduerne med silikone, så der ikke trænger vand ind i annekset.
Dit nye redskabsskur i træ leveres som et præfabrikeret samlesæt. Vi anbefaler, at I er to til opgaven, som ikke kræver specialværktøj. Du følger blot den detaljerede monteringsvejledning. Når redskabsskuret er samlet, bliver det hurtigt en vigtig del af dit haveliv, især når der skal laves havearbejde.
Anneks i træ, Bertilo Pentus 3O, 3,37x2,34x2,33m, Antracit
Funktioner og detaljer











